Desktop CO2 Monitor User Manual Atsisiųsti Bendrinti nuorodą Nukopijuota! Siųsti nuorodą Montavimo instrukcijos
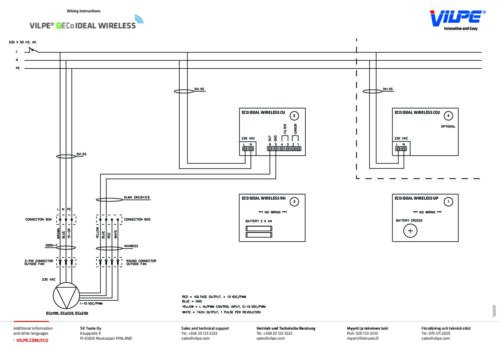
ECo Ideal Wireless General Guidelines Atsisiųsti Bendrinti nuorodą Nukopijuota! Siųsti nuorodą Montavimo instrukcijos
Low-pitched plain standing seam roofing Atsisiųsti Bendrinti nuorodą Nukopijuota! Siųsti nuorodą Montavimo instrukcijos